
EcoNeo
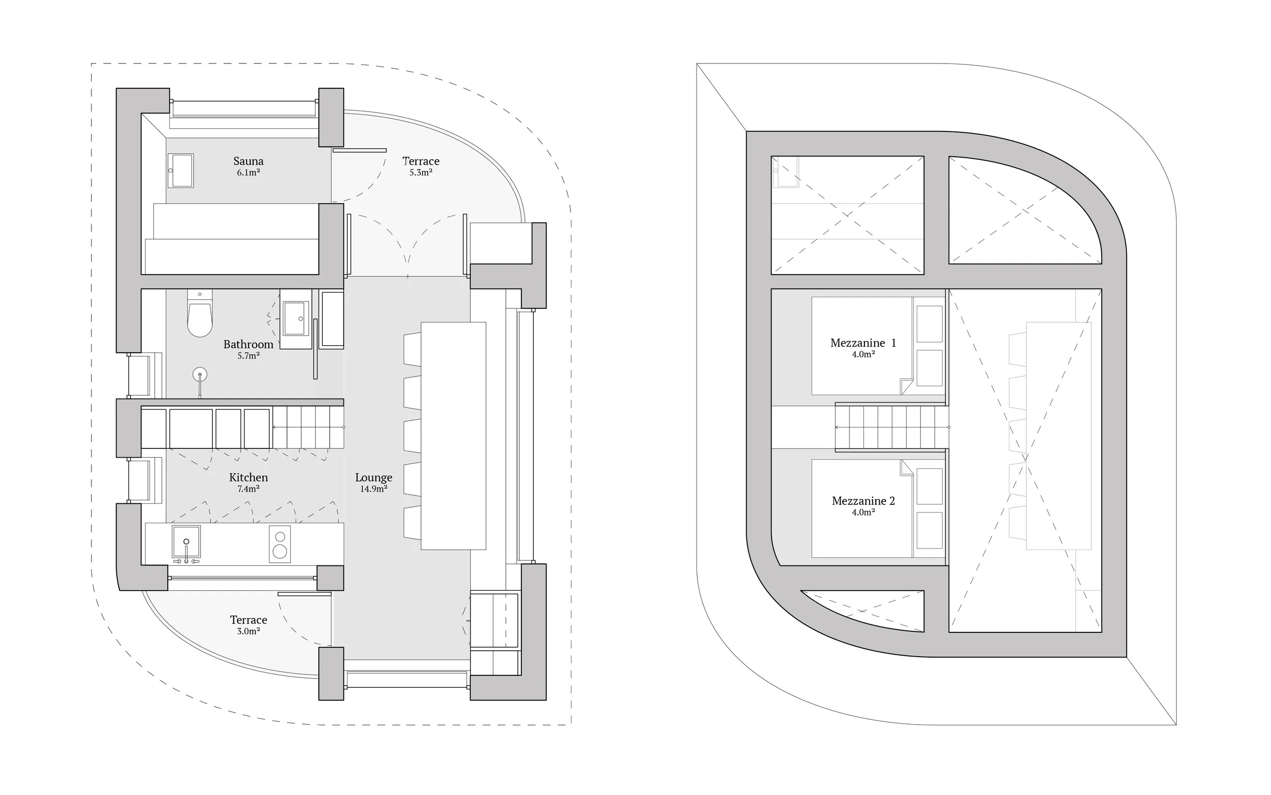
The EcoNeo house is only 35 m² and fulfills all the functional requirements of a summerhouse for a family of 6, including a sauna. The house is made exclusively out of biogenic material and is constructed using digital fabrication methods.











LIVING LARGE IN A TINY HOME
Tiny homes utilize space efficiently and effectively. The footprint of the house is reduced, along with its environmental impact, without compromising the quality of life. A tiny home is a resourceful and innovative use of space. They are also a perfect solution for a summer house, providing the user with all the necessary amenities they could need during their stay.



In recent years, the amount of summer houses continues to increase at a steady pace. The houses are also increasing in size, becoming larger by the year. The average size of summerhouses constructed in Denmark 2010-2020 is 109.1 m², with an average emission of 9.5 kg CO2 pr. m2 pr. year.





~80% reduction in carbon footprint
The EcoNeo house is only 35 m² but fulfills all the functional requirements of a summerhouse for a family of 6, including a sauna. Just by decreasing the size, the overall carbon footprint of the home will be reduced by ~60%. Besides the small size, the house is built using sustainable materials, further reducing the carbon footprint.
The average summer house will emit 93 x 9.5 = 1035.5 kg CO2 pr. year, whereas the EcoNeo will emit 35 x 5 = 175 kg CO2 pr. year.
That is an ~80% reduction in carbon footprint, compared to an average newly built summer house.




LIVING LARGE IN A TINY HOME
Tiny homes utilize space efficiently and effectively. The footprint of the house is reduced, along with its environmental impact, without compromising the quality of life. A tiny home is a resourceful and innovative use of space. They are also a perfect solution for a summer house, providing the user with all the necessary amenities they could need during their stay.

MODULE ASSEMBLY
The modules will be labeled and ordered in manufacturing, allowing for a quick assembly on site. Using small elements allows for easy handling, both in manufacturing and assembly, reducing needs for large lifting gear. By connecting the modules all direction they will all become one big structural element, acting as a whole.
PARAMETRIC MANUFACTURING
Using a parametric approach to develop the modules, we can produce all production documentation automatically, and feed the design directly to the CNC milling machine. This way, we can keep precision high, and labour cost down.
CO2 X-RAY
All material and components of EcoNeo is selected for its low CO2 emission. This custom x-ray shader highlights which building components that are especially low emission. Green mass is low CO2 emission building componens and materials














