
Services
Our office in Copenhagen is a multidisciplinary team with architects, engineers, designers, and software developers. Together we are capable of designing, building, and testing in-house architecture for extreme environments.
Earth Architecture
Building Design (From Concept to Detailed Design)
Our service ranges from providing a complete package to handling specific design phases. It starts with the concept design, where we create visionary architectural visualizations, progresses through the schematic design phase, and then to the final detailed design. This includes comprehensive construction details, drawings, and specifications. We also offer the unique ability to build full-scale mockups of facades and other key elements in our workshop, ensuring each design is thoroughly realized and functional.
Sustainability & Life Cycle Assessment (LCA)
Our strategy involves integrating novel materials and construction methods derived from the latest research with proven sustainable materials known for their solid track record. We implement smart solutions through simulation to enhance efficiency and sustainability. Complementing our approach, we can provide a full Life Cycle Assessment (LCA) report, ensuring a thorough understanding of our projects' environmental impacts from start to finish.
3D Printed Architecture
As the most experienced architectural practice in Large Scale Additive Manufacturing (LSAM), we hold several world records, including creating the tallest 3D-printed polymer structure globally and the largest 3D-printed houses in both Denmark and Central America. Our expertise was further solidified in 2021 with the co-founding of 3DCP Group, now the largest 3D-construction company in Northern Europe.
Off-grid Living & Extreme Environments
Our expertise in remote areas with minimal infrastructure has provided us with distinctive knowledge in off-grid architecture and living. This includes not only power generation and storage, waste management, and recycling but also the establishment of stable communication and data connections. Additionally, we focus on the logistics of deployment and maintenance strategies, along with thorough safety and risk assessments. This comprehensive approach ensures resilience and sustainability in challenging environments.

Space Architecture
Analog Space Habitats
We specialize in turnkey analog space habitat development, managing the entire process from initial ideation to final construction and deployment in diverse climates worldwide. Our workshop is equipped with a complete suite of tools and machines for digital fabrication, as well as a fully outfitted electronics workshop, we're prepared to meet a wide range of technical demands. Additionally, our collaboration with leading spaceflight universities, including MIT, Surrey University, and DTU, ensures that our designs are informed by the latest research and developments in human-rated spaceflight.
Concept Design and Visualization
We assist in developing novel concepts for space architecture and interior. Our vision for the future of manned spaceflight is distinctly human-centric, incorporating stimulating textiles, biogenic materials, circadian lighting systems, and innovative interior concepts. Leveraging our extensive experience in habitation design and manufacturing, we engage in thorough concept development accompanied by complete CAD modeling. Explore our detailed visualizations at www.saga.dk/visuals. We also produce full CG animations and a range of visionary sales materials to bring these concepts to life, showcasing their potential and appeal.
Space Flight Certification
With a proven track record in certifying our own payload and hardware, as well as those of our clients for space flight, we bring a wealth of experience to the table. Our expertise extends to a variety of certification requirements, including structural integrity, thermal and vibration testing, and radiation shielding effectiveness. We have the capability to conduct some of these tests in-house. For more specialized or extensive testing, we leverage our network of partners, ensuring comprehensive certification that meets the stringent standards of space flight.

Technology Development
Software Development
We specialize in developing software solutions for web, embedded systems, and cloud infrastructure. Our approach is to create software that's practical, user-friendly, and maintainable, tailored to meet the specific needs of our clients. Areas we have experience with includes serverless, AI integration, IoT integration (especially lighting control), audio/video streaming, software build pipelines with hardware in-the-loop, accessible web design, and more. We love to code in everything from high-level web stacks (like Next.js with TypeScript) to systems level languages for embedded and kiosk-mode applications.
Hardware Development
Our team focuses on developing practical hardware solutions for space habitats and related projects. We prioritize creating efficient and cost-effective hardware, offering analysis and architecture recommendations to fit your specific project needs. We have built sensor packs, advanced LED lights, and other hardware for both our analog habitats and other commercial use cases. We have extensive experience with Bluetooth, WiFi, PWM, I2C, MQTT, KNX, CANbus, and other protocols.
Prototyping
Our prototyping service is all about turning ideas into reality quickly and affordably. Using our advanced 3D printing capabilities, we can develop a wide range of prototypes to suit various needs and applications. We have in-house capabilities from breadboard, to perfboard, to final PCB design and assembly.
Product Design
Led by our team of skilled award-winning designers, we aim to create products that are both visually appealing and functionally effective. Our design process is collaborative, ensuring that the end product aligns perfectly with your vision and goals. Strict requirements are not an excuse to compromise on aesthetic quality, and we have the perfect team to balance these two aspects.

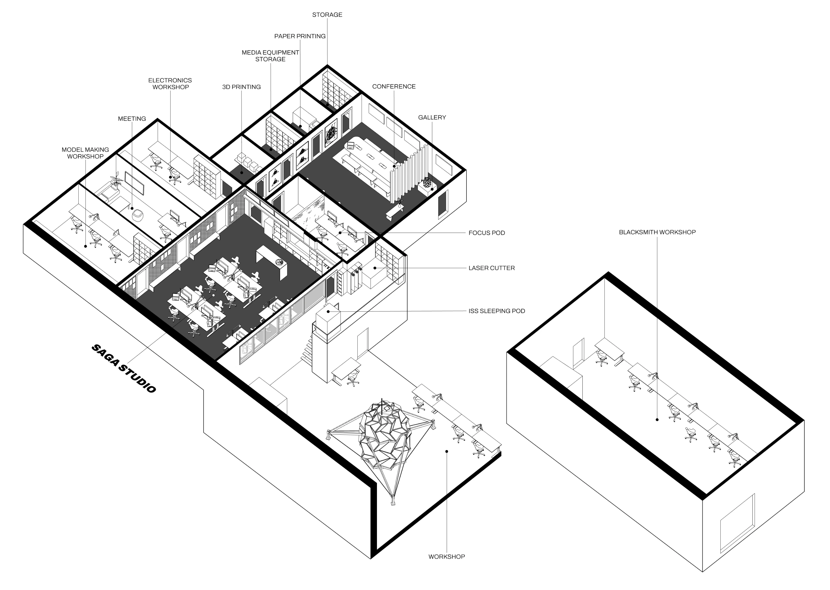
In-House Facilities
At SAGA, our studio and workshop spaces are where visionary ideas are transformed into tangible realities. As a one-stop shop for advanced architecture and design solutions, we offer a comprehensive range of capabilities under one roof. Our facility is equipped with state-of-the-art digital fabrication tools, including CNC machines, 3D printers, and laser cutters. We host various specialized shops for electronics, metalworking, general assembly, and model building, catering to a wide array of project needs.
Moreover, our office and workshop serve a dual purpose as a testing ground for our innovative Habitat OS and Sensor packages. This integration allows us to continually refine and enhance these systems in real-world scenarios, ensuring they meet the highest standards of functionality and reliability.
