
Skovsporet
Skovsporet is a student village in Holstebro, Denmark consisting of 36 ground-level apartments. When completed each of the houses will be some of the largest 3D-printed houses in the world.



Building progress update
The 3D-printed homes at Skovsporet in Holstebro are nearing completion. The main concrete printing phase for all 36 units is now finished, marking a key milestone for Denmark's first large-scale 3D-printed housing project. The roof structure is being installed, and interior work has begun with walls, installations, and finishes taking shape. The construction remains on schedule, with handover to residents expected in August 2026.

The walls feature coated plywood panels that seamlessly integrate with built-in shelving, presenting both form and function. Dominating the backdrop is an expansive glass window that beautifully frames the verdant garden view. Enhancing the brightness of the space, an elongated skylight punctuates the acoustic ceiling, inviting daylight to stream in. The space allows a sofa optimally positioned to offer outdoor viewing.


Village atmosphere

Shaping the community
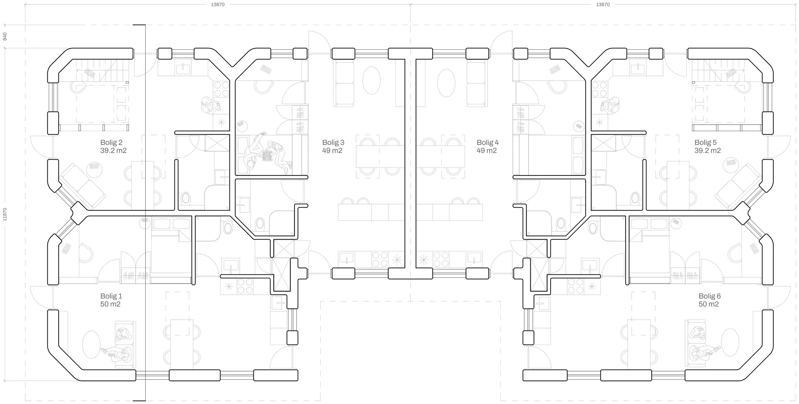
There are 36 student apartments, divided into 6 clusters with 6 apartments each. Every unit boasts a full kitchen, study area, lounge with sofa, bathroom with shower, and a spacious double bed. Additionally, each apartment features expansive roof windows.









